1er Servicio de Hospital de Día de la Provincia de Santa Fe
Fecha de realización: marzo a noviembre de 2003.
Financiación: la obra fue costeada en parte por la donación de US$ 300 mil realizada por la señora María Antonia Astengo de Barrutia entre 2002 y 2003, y por el Ministerio de Salud de la Provincia. El costo total ascendió a unos 2 millones de pesos.
Ejecución y dirección técnica: CPN Aldo H Lattuca & Asoc. Propiedad Horizontal / Arquitectos Fontan, Ferri, Compagnucci, Moscato.
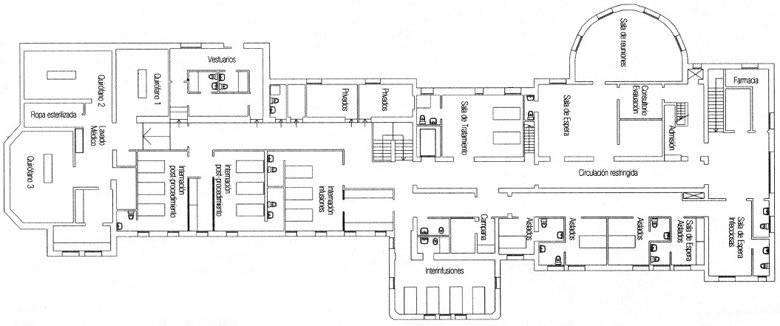
Trabajos realizados: reconstrucción integral de la Sala XI y arreglos en Sala X y subsuelo, circuito de calefacción y aire acondicionado, construcción de tres quirófanos, dos salas de internación temporaria, sala de quimioterapia, sala de reuniones, gabinete de bioseguridad y vestuarios, instalación de dos ascensores de última generación, conexión interna con Sala de Cirugía General.
Servicios que presta el Hospital de Día: cirugías poco invasivas (gastroenterología, oftalmología, traumatología) con internación de un solo día, quimioterapia para pacientes oncológicos.
HOSPITAL DE DÍA DEL HOSPITAL PROVINCIAL DEL CENTENARIO. UN MODELO DE ATENCION AMBULATORIA. RESULTADOS DE 5 AÑOS DE FUNCIONAMIENTO.
Introducción
A cinco años de la puesta en funcionamiento de un Hospital de Día, ubicado dentro de un Hospital Universitario nos hemos propuesto revisar la actividad asistencial, así como sus resultados en una unidad con característica novedosa en su momento y repetida en otros escenarios.
El Hospital de Día es por definición un espacio asistencial con atención programada de pacientes derivados por sus médicos de cabecera para efectuar un procedimiento diagnostico o terapéutico; clínico o quirúrgico. El Servicio esta sistematizado con un lenguaje único y acordado con el personal que efectúa sus tareas dentro del área y los médicos derivadores. Una vez cumplida la indicación médica y/o quirúrgica, el paciente se reintegra, en el día, a su medio.
El servicio cumple sus tareas de 7 a 17 hs.
El área clínica cuenta con 8 camas y 6 sillones para su atención. Presenta un área de cuidados especiales con tres habitaciones individuales para pacientes con problemas biopsicosociales particulares. El área quirúrgica cuenta con tres quirófanos de progresiva complejidad y dos salas de recuperación de 3 camas cada una.
Materiales
La información fue extraída del programa informático diseñado particularmente para esta unidad asistencial, la cual es cargada diariamente.
Resultados y comentarios
En el periodo 2004-2009 se realizaron 13868 procedimientos en pacientes derivados por el hospital. 8160 de motivos clínicos y 5678 quirúrgicos.
En el periodo 2004-2010 fueron realizados 5678 procedimientos por todas las especialidades quirúrgicas que utilizan las instalaciones.
La demanda fue en aumento desde su inicio en el 2004, 362 procedimientos a 1147 en el 2009.
El cambio en el modelo de atención ambulatorio llevo dos años en lograr imponerse, alcanzado en el segundo año lo que la experiencia en este modelo asistencial estiman, 10 a un 20% del total de procedimiento quirúrgicos que se realizados en la institución. Porcentaje que se logra supera en el 3º año llegando a realizar actualmente un 35% del total de cirugías que se realizan en el Hospital Centenario.
Se consideró de interés analizar que impacto tubo en la demanda del quirófano central la aparición de este nuevo espacio, resultando que no hubo variaciones en el número promedio de cirugías que se realizaban históricamente en esa área. En ese sentido el hospital no distribuyo su producción sino que aumento el nº total de procedimientos
En relación a la utilización por especialidades se observa que los servicios que más realizan procedimientos ambulatorios son oftalmología seguido por cirugía general.
Dentro de los procedimientos realizados, aparte del volumen generado por oftalmología, se destacan los procedimientos video endoscópicos con 285 colecistectomías laparoscópicas y 230 video laparoscopías e histeroscopías ginecológicas.
El desarrollo de un modelo de registro informatizado que permite registrar la ficha de derivación y las indicaciones de los procedimientos a efectuar, desde la oficina del médico derivante, aporto beneficios sustanciales al control de los registros, auditoria médica y de medicamentos.
Conclusiones: A 5 años de funcionamiento de la unidad asistencial Hospital de Día, dentro de un Hospital General Universitario, ha demostrado protagonismo propio en la red prestacional hospitalaria pública. La patología asistida es oncológica, oftalmológica y ginecológica en su mayoría, pero en el tiempo adquieren protagonismo otras indicaciones. El conocer los datos de patologías atendidas permite orientar el servicio hacia los problemas prevalentes. La información y comunicación del servicio ofrecido adquiere gran importancia para responder a las demandas asistenciales.
A DIEZ AÑOS DE FUNCIONAMIENTO DEL HOSPITAL DE DIA
Al haberse completado 10 años de la inauguración del Hospital de Dia del Hospital Provincial del Centenario, es propicio hacer público detalles de la prestación ofrecida a la población general.
Según los registros informatizados, entre el 2004 al 2011 se atendieron más de 10.000 pacientes que realizaron un total de 31.117 prestaciones clínicas transitorias, y 7.558 procedimientos quirúrgicos, por lo que el total de internaciones en este lapso, ha sido no menor de de 38.000, constituyéndose, según los cálculos, en el servicio de adultos con mayor movimiento asistencial del Hospital del Centenario. En el 2015 se encuentra con 20.000 fichas de derivación, y 80.000 procedimientos efectuados.
El Servicio se conduce en forma programada y por derivación, es decir, que en este espacio se recibe para su tratamiento medico o para realizar estudios diagnósticos, los o las pacientes derivados por médicos de otros Servicios, con la única condición que , en principio, puedan ser dados de alta, antes del atardecer.
La experiencia mundial demuestra que este tipo de paciente ambulatorio, va en aumento, aún realizándose tratamientos quirúrgicos relativamente complejos, gracias a los avances en los métodos y aparatos utilizados, como la endoscopía y las nuevas drogas y técnicas anestésicas que permiten un alta precoz.
Dentro de las cirugías desarrolladas es de interés mencionar las 520 litiasis biliares operadas sin morbilidad, y los casos de cirugía bar iátrica por obesidad mórbida, a quienes se les ha realizado la operación de manga gástrica o gastrectomía vertical.
Con la incorporación en los últimos años, por la Universidad, de un Gammaprobe, se realiza el tratamiento quirúrgico del cáncer de mama con la técnica del ganglio centinela, como otras operaciones oncológicas que puedan requerir este procedimiento. Los cirujanos plásticos realizan prácticamente todas sus cirugías en este ambiente (incluso lipectomías abdominales) y los oftalmólogos operan desde cataratas a vitrectomías u operaciones por glaucoma, constituyéndose en el servicio que deriva el mayor número de cirugías.
Respecto a los pacientes del área clínica, que cuenta con 10 camas y 6 sillones o poltronas, recibía inicialmente, en forma casi exclusiva, enfermos oncológicos para realizar series de quimioterapia. Hoy, tal corriente de pacientes, continúa y se ha incrementado, pero representan sólo algo menos del 50% del total de procedimientos realizados. Hemodinamia, hematología y hemoterapia aportan actualmente un importante caudal y servicios como neumonología, alergia, psicología, nefrología, reumatología, endocrinología y clínica derivan y atienden a aquellos pacientes que pueden beneficiarse con tratamientos ambulatorios o internación muy breve. Se cuenta con tres áreas de habitaciones aisladas, para pacientes infecto contagiosos, o por razones sociales como, personas detenidas.
Durante el tiempo de internación y hasta el alta, los enfermos son controlados por el cuerpo profesional y un equipo de enfermeras y secretarias particularmente entrenadas para las características y normas de un hospital de día. Todos los pacientes cuentan con una entrevista psicológica, ejercida por profesionales.
Por último, cabe mencionar, que en el servicio se desarrollan actividades docentes y culturales. Distintos profesionales del medio y del extranjero han rotado por el Servicio, realizando pasantías. También se han realizado mostraciones quirúrgicas y cursos, en el lugar y trasmitidos por sistemas telemáticos.
En 10 años de funcionamiento, el Hospital de Día ha cumplido su función asistencial pública y docente y también ha cumplido con los objetivos de su donante. Su futuro es promisorio, sin límites como la misma ciencia












